To avoid potential confusion, disappointment, and even legal liability, we believe it is best practice to make sure that the measurements, boundary lines, etc that we post in MLS are not guaranteed.
All room dimensions and property boundaries are approximate. While the information provided is believed to be reliable, it is not guaranteed. Buyers are responsible for independently verifying all measurements and details to their satisfaction.
We suggest adding the following verbiage directly to your images (you can do this on Canva or Paint), or ask Katie (katiecasey@crownrealty.com), Nick (nick@crownrealty.com) or Briana (briana@crownrealty.com) for help OR you can add it to the captions in MLS!
We believe this is especially important for drone images!!!

—-
Aerial map, created with Surety® Pro paid subscription & used with permission from AgriData, Inc.

“This map is for general reference only and may not reflect exact locations or dimensions.”

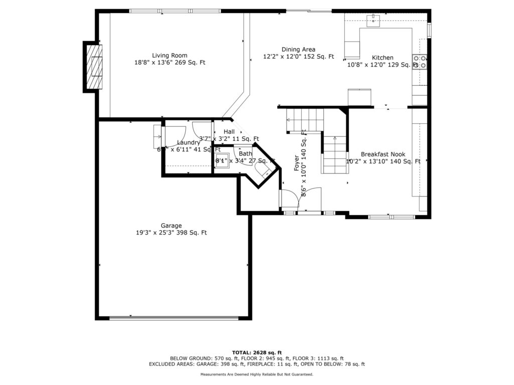
“Floorplan is for illustrative purposes only. All dimensions and layouts are approximate.”












Recent Comments